-
- Tổng tiền thanh toán:

Co lên máng cáp là gì? Cấu tạo, các thông số và ứng dụng
Tác giả: OneAds Ngày đăng: 14.09.2025
Trong mọi hệ thống điện công nghiệp và dân dụng, việc quản lý và định tuyến cáp là một thử thách lớn. Co lên máng cáp là phụ kiện cốt lõi không thể thiếu khi bạn cần chuyển hướng tuyến máng cáp theo chiều thẳng đứng một cách an toàn và chuẩn kỹ thuật. Đây chính là giải pháp tối ưu chi phí và không gian, giúp máng cáp dễ dàng vượt qua các chướng ngại vật hay thay đổi cao độ lắp đặt. Bài viết này Saigon Sinco sẽ cung cấp hướng dẫn chi tiết về tiêu chuẩn, kích thước và quy trình lắp đặt co lên máng cáp đúng chuẩn để hệ thống điện của bạn luôn hoạt động hiệu quả và đạt tính thẩm mỹ cao nhất.
Co lên máng cáp là gì?

Co lên máng cáp
Co lên máng cáp, hay còn gọi là co trong máng cáp, là một phụ kiện quan trọng trong hệ thống máng cáp điện. Chức năng chính của nó là chuyển hướng đường đi của máng cáp theo một góc nhất định, cụ thể là từ mặt phẳng nằm ngang lên một mặt phẳng khác. Nhờ có phụ kiện này, hệ thống dây cáp điện có thể được dẫn từ tầng này lên tầng khác, hoặc đi vòng qua các chướng ngại vật trên tường và trần nhà một cách gọn gàng và thẩm mỹ.
Phụ kiện này thường được sử dụng ở các vị trí cần thay đổi độ cao của tuyến cáp, chẳng hạn như khi máng cáp chạy sát trần và cần đi xuống để kết nối với tủ điện, hoặc khi cần vượt qua các ống nước, dầm ngang. Việc sử dụng co lên máng cáp giúp bảo vệ dây dẫn khỏi bị uốn cong quá mức, giảm thiểu rủi ro hư hỏng, đứt gãy lõi cáp, đồng thời đảm bảo an toàn cho toàn bộ hệ thống.
Cấu tạo và đặc điểm
Hình dạng

Hình dạng co lên máng cáp
Co lên máng cáp có hình dáng đặc trưng giống như một góc vuông được uốn cong mềm mại, với các cạnh được bo tròn để tránh làm trầy xước vỏ cáp. Thông thường, co lên có hai đầu mở để kết nối trực tiếp với các đoạn máng cáp thẳng. Kích thước và độ rộng của co lên được sản xuất đồng bộ với các loại máng cáp tiêu chuẩn, từ 50x50mm đến 600x200mm, đảm bảo sự ăn khớp hoàn hảo khi lắp đặt.
Tương tự như các phụ kiện máng cáp khác, co lên máng cáp cũng có các lỗ đột dập trên bề mặt để dễ dàng cố định và liên kết với các đoạn máng cáp khác bằng bu lông, đai ốc. Thiết kế này không chỉ giúp việc thi công nhanh chóng mà còn tăng cường độ chắc chắn cho toàn bộ hệ thống.
Vật liệu và lớp phủ bề mặt
Vật liệu phổ biến nhất để sản xuất co lên máng cáp là tôn mạ kẽm, tôn sơn tĩnh điện, inox 201, 304 hoặc thép. Mỗi loại vật liệu đều có những ưu điểm riêng, phù hợp với từng môi trường lắp đặt cụ thể.
Tôn mạ kẽm: Phổ biến nhờ giá thành hợp lý và khả năng chống ăn mòn tốt. Co lên máng cáp mạ kẽm thường được dùng trong các công trình dân dụng, nhà xưởng thông thường.
Tôn sơn tĩnh điện: Loại vật liệu này cho phép đa dạng màu sắc, giúp phù hợp với yêu cầu kiến trúc của công trình. Lớp sơn tĩnh điện cũng bảo vệ co lên khỏi tác động của môi trường, chống gỉ sét hiệu quả.
Inox (201, 304): Đây là lựa chọn cao cấp, đặc biệt phù hợp với môi trường có độ ăn mòn cao như nhà máy hóa chất, khu vực ven biển hoặc ngành công nghiệp thực phẩm. Co lên máng cáp inox có độ bền vượt trội và không bị gỉ sét.
Thép: Loại co lên này được sử dụng trong các môi trường khắc nghiệt hơn, nơi cần sự chắc chắn và chịu lực cao.
Việc hiểu rõ co lên máng cáp, cũng như cấu tạo và vật liệu của nó, sẽ giúp bạn chọn được sản phẩm phù hợp nhất cho công trình của mình.
Phân biệt Co lên và Co xuống: Có thể dùng thay thế cho nhau không?
Nhiều người, kể cả trong ngành, đôi khi vẫn nhầm lẫn giữa co lên và co xuống máng cáp do chúng có hình dáng khá tương đồng. Tuy nhiên, hai phụ kiện này được thiết kế với mục đích hoàn toàn khác biệt và không thể dùng thay thế cho nhau trong bất kỳ trường hợp nào. Việc sử dụng sai loại không chỉ làm mất thẩm mỹ mà còn gây khó khăn trong thi công và tiềm ẩn rủi ro cho hệ thống điện.

Phân biệt Co lên và Co xuống
Sự khác biệt về hình học và vị trí lắp đặt
Sự khác biệt cơ bản nhất giữa hai loại co này nằm ở hướng chuyển đổi của chúng.
Co lên máng cáp: Được thiết kế để chuyển hướng máng cáp từ mặt phẳng ngang lên một mặt phẳng khác ở vị trí cao hơn, tạo thành một đường cong hướng lên trên. Vị trí lắp đặt điển hình của co lên là ở chân tường, cột nhà hoặc tại các điểm cần dẫn dây từ tầng dưới lên tầng trên.
Co xuống máng cáp: Ngược lại, co xuống được dùng để chuyển hướng máng cáp từ mặt phẳng ngang xuống một mặt phẳng ở vị trí thấp hơn, với đường cong hướng xuống dưới. Phụ kiện này thường được lắp đặt trên trần nhà hoặc các vị trí cao, khi cần đưa dây cáp xuống tủ điện hoặc các thiết bị máy móc đặt dưới sàn.
Về mặt hình học, mặc dù đều là một góc cong, nhưng co lên có thiết kế mặt cắt ở phía trong lớn hơn mặt cắt ở phía ngoài, trong khi co xuống lại có thiết kế ngược lại. Sự khác biệt tinh tế này đảm bảo rằng khi lắp đặt, máng cáp và các mối nối sẽ khớp nhau một cách hoàn hảo, không bị vênh, hở.
Lý do tại sao không nên dùng thay thế
Như đã phân tích ở trên, co lên và co xuống có cấu trúc hình học đối lập nhau. Nếu cố tình sử dụng co lên để lắp cho vị trí cần co xuống, các mối nối sẽ không khớp, gây ra các vấn đề nghiêm trọng:
Mất an toàn và thẩm mỹ: Mối nối không khít sẽ tạo ra các khe hở, làm giảm độ chắc chắn và tính thẩm mỹ của hệ thống. Dây cáp có thể bị tuột ra ngoài hoặc bị kẹt lại, gây nguy hiểm.
Hư hỏng dây cáp: Khi uốn cong dây cáp qua một phụ kiện không phù hợp, dây có thể bị gập gãy, ảnh hưởng đến lớp vỏ bảo vệ và lõi dẫn điện bên trong. Điều này làm giảm tuổi thọ của dây và tiềm ẩn nguy cơ chập cháy.
Khó khăn trong thi công: Việc cố gắng "độ chế" một phụ kiện không đúng mục đích sẽ làm tốn nhiều thời gian và công sức của thợ điện, đồng thời không đảm bảo được chất lượng công trình.
Tóm lại, để đảm bảo hệ thống điện hoạt động ổn định và an toàn, bạn cần lựa chọn đúng loại phụ kiện cho từng mục đích sử dụng. Hiểu rõ co lên máng cáp là gì và co xuống là gì sẽ giúp bạn đưa ra quyết định chính xác và chuyên nghiệp hơn.
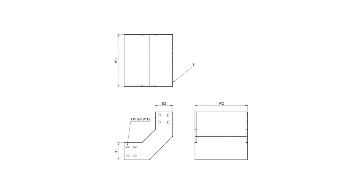
Thông số kỹ thuật của cút co lên máng cáp
Khi lựa chọn cút co lên máng cáp, việc nắm rõ các thông số kỹ thuật là vô cùng quan trọng để đảm bảo phụ kiện này phù hợp với hệ thống máng cáp hiện có và đáp ứng yêu cầu của công trình. Các thông số chính cần lưu ý bao gồm kích thước, bán kính cong và độ dày vật liệu.

Thông số kỹ thuật của cút co lên máng cáp
Kích thước (Chiều rộng, chiều cao)
Kích thước của cút co lên máng cáp phải tương ứng với kích thước của máng cáp thẳng để tạo thành một hệ thống đồng bộ. Các kích thước phổ biến trên thị trường được sản xuất theo tiêu chuẩn và thường bao gồm hai thông số: chiều rộng (W) và chiều cao (H).
Chiều rộng (W): Thường có các kích thước từ 50mm, 100mm, 150mm đến 600mm. Chiều rộng của co lên máng cáp phải bằng với chiều rộng của máng cáp để đảm bảo mối nối chắc chắn và liền mạch.
Chiều cao (H): Tương tự, chiều cao của co lên máng cáp phải khớp với chiều cao của máng cáp, thường có các kích thước như 50mm, 75mm, 100mm, 150mm hoặc 200mm.
Sự tương thích về kích thước là yếu tố tiên quyết để đảm bảo việc lắp đặt dễ dàng và hệ thống hoạt động ổn định.
Bán kính cong
Bán kính cong (R) là một thông số kỹ thuật quan trọng khác của cút co lên máng cáp. Bán kính cong ảnh hưởng trực tiếp đến khả năng uốn cong của dây cáp khi đi qua phụ kiện này. Các giá trị bán kính cong phổ biến bao gồm R50, R100, R150, R200, R300, v.v.
Bán kính cong càng lớn, đường cong càng thoải, giúp giảm thiểu áp lực lên dây cáp, đặc biệt là các loại cáp điện có đường kính lớn hoặc cáp quang.
Việc lựa chọn bán kính cong phù hợp giúp bảo vệ lõi cáp khỏi bị gãy hoặc đứt, đảm bảo tín hiệu và dòng điện được truyền tải ổn định.
Độ dày vật liệu
Độ dày của vật liệu dùng để sản xuất cút co lên máng cáp quyết định độ bền và khả năng chịu lực của phụ kiện. Độ dày phổ biến thường từ 0.8mm đến 2.0mm.
Độ dày 0.8mm - 1.2mm: Thường được dùng cho các công trình dân dụng hoặc hệ thống máng cáp có tải trọng nhẹ.
Độ dày 1.5mm - 2.0mm: Phù hợp cho các công trình công nghiệp, nhà máy, nơi hệ thống máng cáp phải chịu tải trọng lớn và yêu cầu độ bền cao hơn.
Việc chọn độ dày phù hợp với tải trọng của hệ thống cáp sẽ giúp đảm bảo tuổi thọ và độ an toàn lâu dài cho toàn bộ công trình.
Ứng dụng thực tế của Co lên máng cáp
Co lên máng cáp là một phụ kiện không thể thiếu trong nhiều dự án xây dựng và lắp đặt hệ thống điện. Hiểu rõ co lên máng cáp là gì và các ứng dụng của nó sẽ giúp bạn tối ưu hóa thiết kế, đảm bảo hiệu quả và an toàn cho công trình. Dưới đây là ba ứng dụng thực tế phổ biến nhất.

Ứng dụng thực tế của Co lên máng cáp
Đi dây từ sàn nhà lên tường
Đây là một trong những ứng dụng cơ bản nhất của co lên máng cáp. Trong nhiều công trình, đặc biệt là nhà xưởng hoặc khu vực văn phòng, dây cáp điện thường được dẫn từ các thiết bị dưới sàn, qua máng cáp đi ngầm hoặc nổi trên mặt sàn, sau đó cần được đưa lên tường để đi tới các ổ cắm, tủ điện hoặc thiết bị khác. Co lên máng cáp giúp chuyển hướng cáp từ mặt phẳng nằm ngang lên mặt phẳng thẳng đứng của tường một cách gọn gàng, tạo ra một đường đi liền mạch và thẩm mỹ.
Đi dây lên các tầng cao hơn
Trong các tòa nhà nhiều tầng, việc dẫn cáp điện từ tầng này lên tầng khác là yêu cầu bắt buộc. Co lên máng cáp được sử dụng để chuyển hướng các tuyến cáp từ máng cáp ngang tại mỗi tầng lên các đường ống hoặc máng cáp trục đứng. Điều này giúp hệ thống dây cáp được phân phối đều đặn và có tổ chức, tránh tình trạng chồng chéo, lộn xộn.
Lắp đặt hệ thống trục đứng trong tòa nhà
Hệ thống trục đứng (vertical riser system) là xương sống của hệ thống điện trong các tòa nhà cao tầng. Nó bao gồm các đường cáp chính dẫn điện từ phòng kỹ thuật trung tâm lên các tầng. Tại các điểm kết nối giữa máng cáp ngang của mỗi tầng và máng cáp trục đứng, co lên máng cáp đóng vai trò cầu nối, giúp các tuyến cáp con được dẫn vào trục chính một cách an toàn và chuyên nghiệp. Nhờ đó, việc quản lý và bảo trì hệ thống trở nên dễ dàng hơn.
Hy vọng với những thông tin trên, bạn đã hiểu rõ co lên máng cáp và cách nó hoạt động trong hệ thống điện. Việc lựa chọn và sử dụng phụ kiện đúng cách không chỉ đảm bảo an toàn, hiệu quả mà còn tăng tính thẩm mỹ cho công trình. Nếu bạn đang tìm kiếm các sản phẩm co lên máng cáp chất lượng cao, đúng tiêu chuẩn kỹ thuật, hãy liên hệ ngay với Saigon Sinco để được tư vấn và nhận báo giá tốt nhất. Chúng tôi cam kết mang đến những giải pháp tối ưu cho mọi dự án của bạn.
CTY TNHH TM XÂY LẮP CÔNG NGHIỆP SÀI GÒN (SINCO ENGINEERING):
Công Ty TNHH Thương Mại Xây Lắp Công Nghiệp SÀI GÒN Sinco - nhà sản xuất và phân phối thiết bị điện hàng đầu tại Việt Nam. Chúng tôi cung cấp tủ điện, máy biến áp và nhiều sản phẩm chất lượng khác.
- Địa chỉ: 489/9 Mã Lò, Khu phố 1, Phường Bình Hưng Hòa A, Bình Tân, Hồ Chí Minh
- Hotline: 0946556058 - 0914510058
- Email: saigonsinco@gmail.com
- Website: https://www.saigonsinco.com
MỜI QUÝ KHÁCH XEM THÊM CÁC SẢN PHẨM KHÁC CỦA CHÚNG TÔI TẠI ĐÂY:

